sven mieke fteR0e2BzKo unsplash

Standalone Architectural Services

Don’t need a full architectural package?  That’s where our standalone services come in.  Whether you’re just starting out or need support at a specific stage, we offer targeted, expert input – when and where it matters most.

From early concept ideas and 3D visuals to project advice and pre-construction support, our focused architectural services are designed to meet you exactly where you are in your project journey.

Architectural Advice Clinic

When you don’t need full architectural services but still want expert guidance.

Our two-hour Project Workshop offers practical, tailored advice to help shape your vision for your project and clarify your next steps.  We’ll work closely with you to explore your project’s potential and provide clear, professional insights.  

What we can cover:

  • Refining your brief and project goals
  • Layout ideas and how to maximise your space
  • A second opinion on your current design
  • Planning advice and potential planning constraints
  • Implications of proposed changes
  • Project timeframes and scheduling
  • High-level budget breakdown and cost expectations

This foundational step gives you the clarity, confidence, and momentum to move forward.

Cost: £200 (No VAT charged)

Architectural Advice Clinic

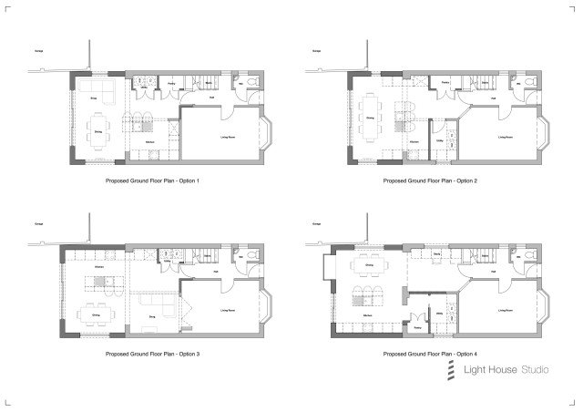
Ideas Generator Pack

Have an idea for a project but not sure where to begin?  Our Ideas Generator Pack provides inspiration and direction, including:

  • 2 – 3 tailored floor plan options
  • Initial design concepts
  • Outline budget estimates
  • Overview of planning and structural considerations

Your ideas will be presented in a clear, professional PDF design report, including dimensions and furniture arrangements.  

Cost: £400 (No VAT charged)
Optional add-on: A coloured sketch perspective image to bring your favourite design option to life - £200.

02 Ideas Generator Pack

3D Visuals

Already have 2D floor plans but want to visualise them in 3D?

We create high-quality, commissioned 3D visuals to bring your design to life - ideal for homeowners, self-builders, developers, or estate agents looking to showcase a project with clarity and impact

03 3D Visuals

Pre-Construction Support

Ready to build but need help taking the final steps?

If your drawings are ready but you’re unsure how to proceed – whether it’s selecting the right contractor, comparing quotes, or reviewing tender documents – we can help you make informed, confident decisions before construction begins.

Pre Construction Support

Let’s build something together

Whether you’re ready to start a project or just exploring ideas, we’d love to hear from you. Get in touch and let’s talk about what’s possible.